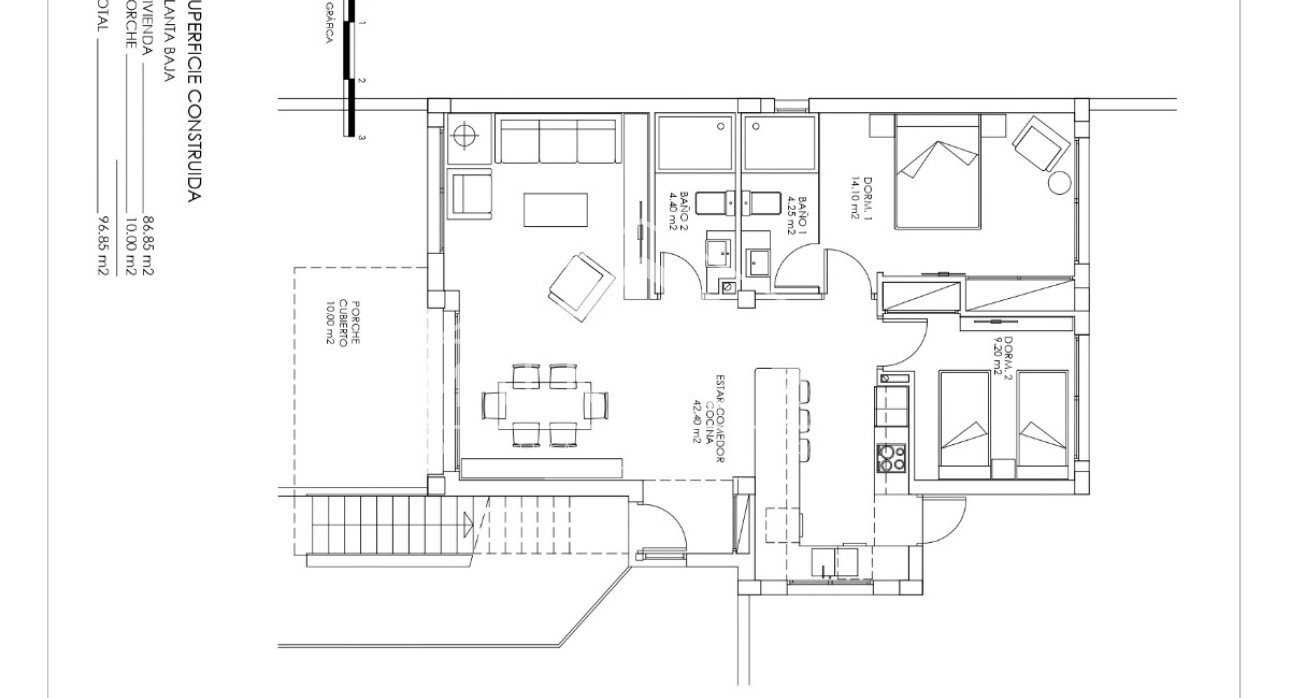
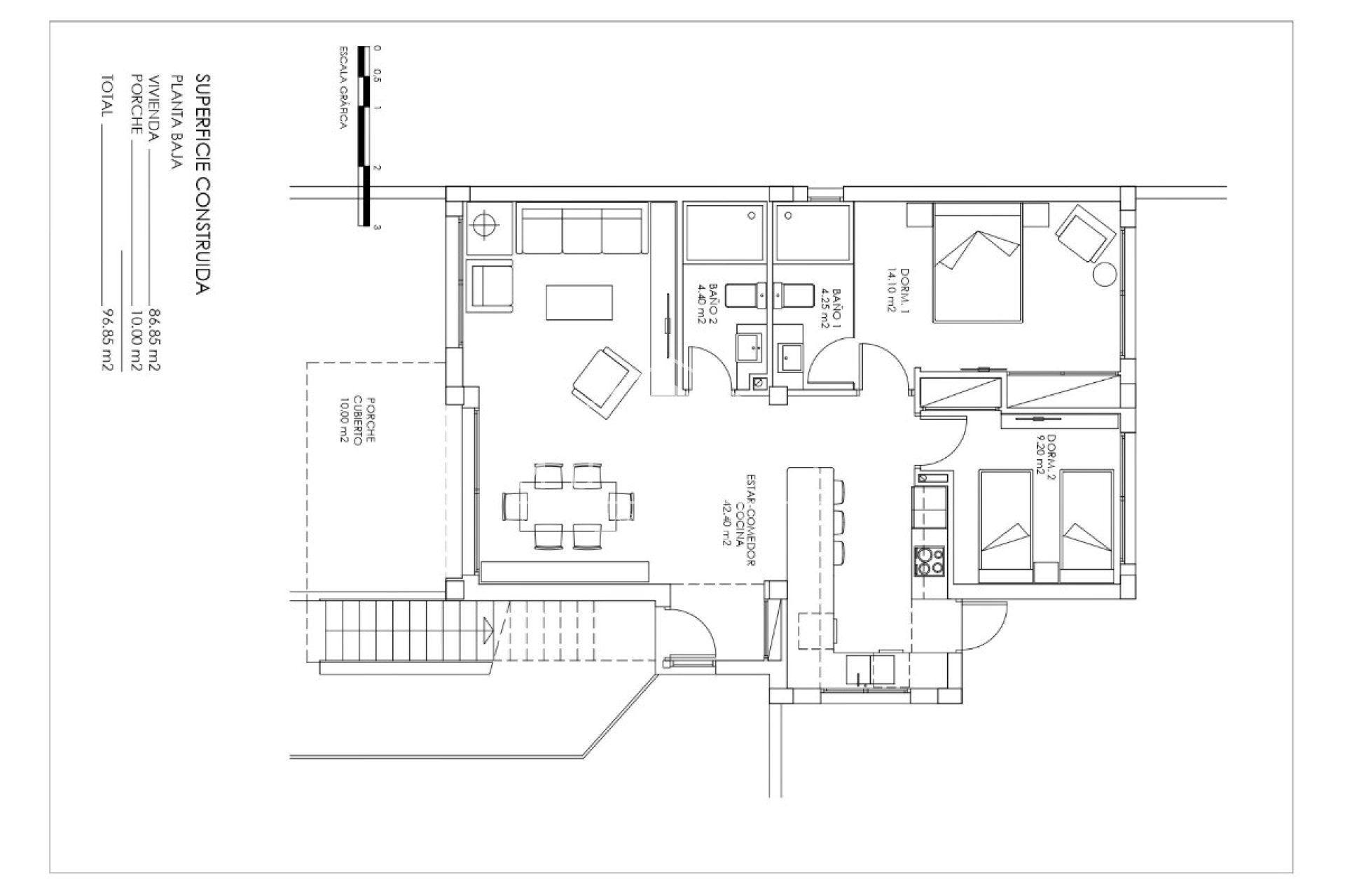
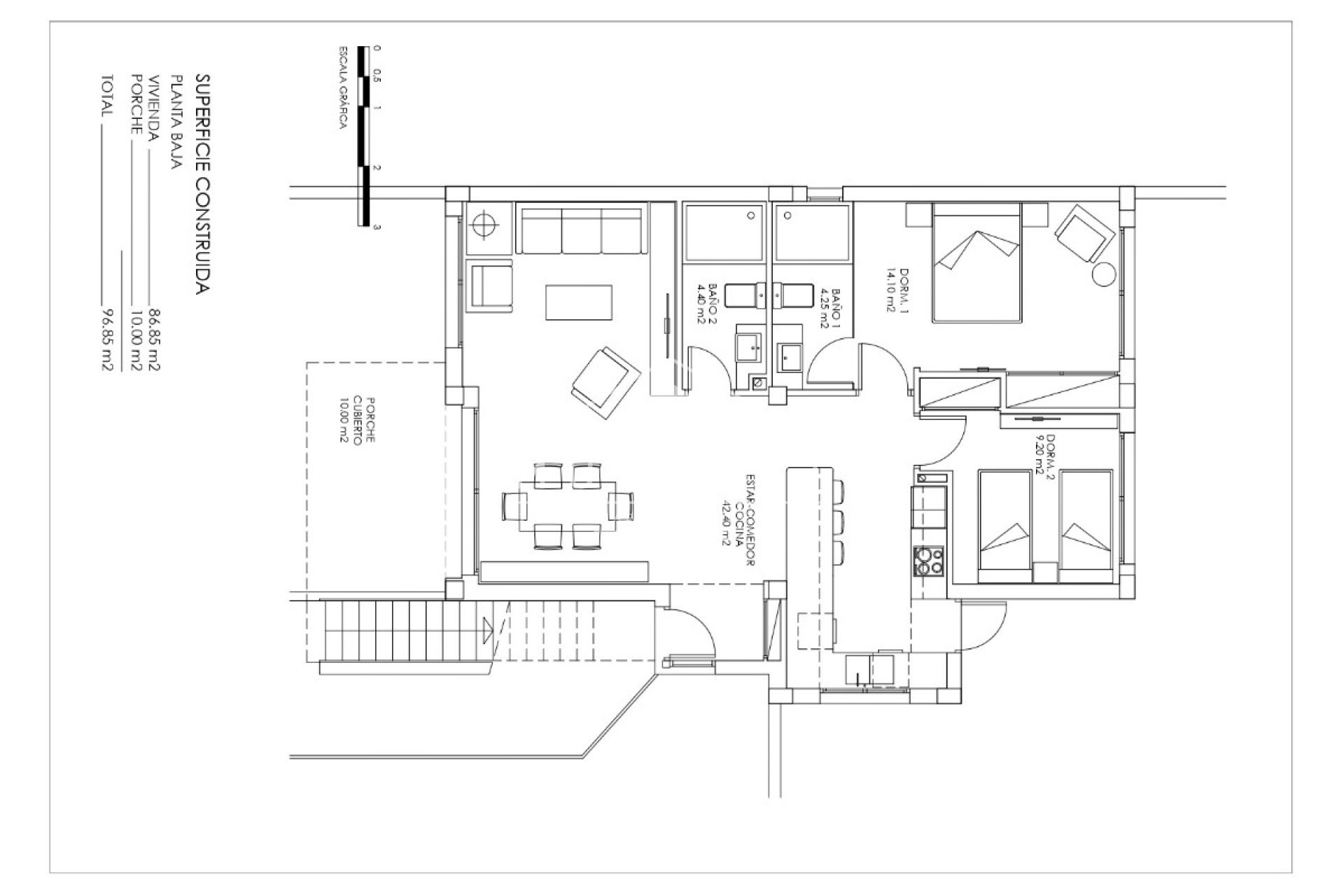
Properties

745 Properties

Eigenschaften
WhatsApp