Revente » Villas » Rojales » Ciudad Q
Ref: TP002-N-D
1.050.000€

Ciudad Quesada Villas · Revente

Vue générale

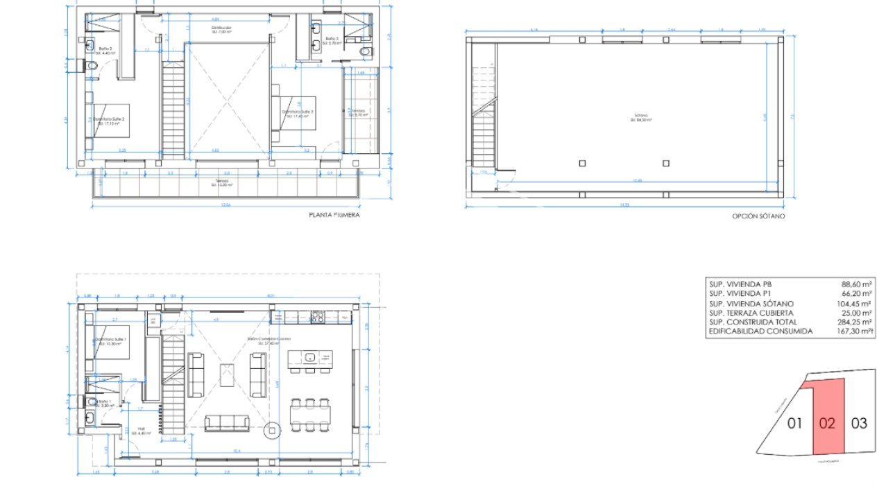
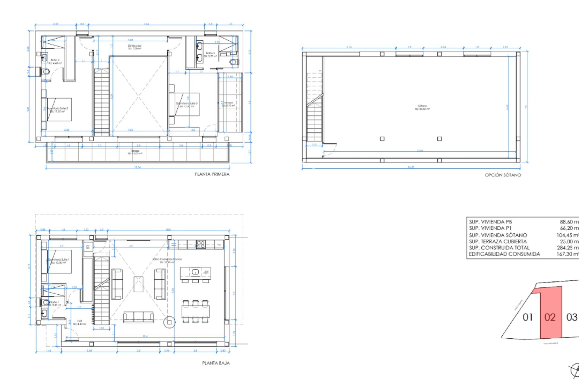
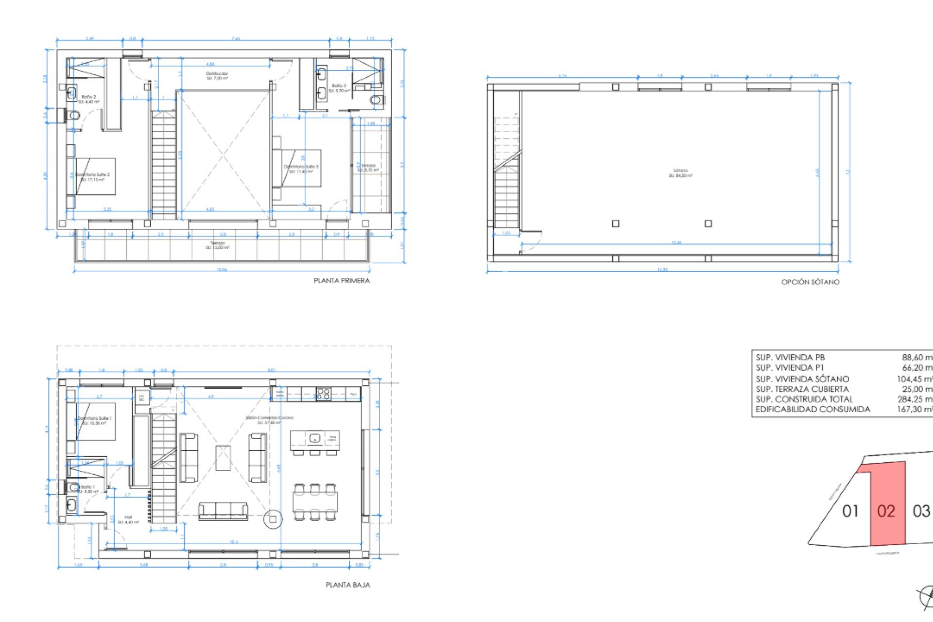
  • 284m2
  • 557m2
  • 3
  • 3
  • Privé
Chambres: 3
Salles de bain: 3
Construit: 284m2
Parcelle: 557m2
Piscine: Privé
Condition: New
Distance à la plage: 25 Mins.
Distance à l'aéroport: 32 Mins.
Énergie: En cours
Débarras

La description

VILLA de trois chambres à CIUDAD QUESADA

Finance

Les informations fournies ici sont sous réserve d'erreurs et ne font pas partie d'un contrat. L'offre peut être modifiée ou retirée sans préavis. Les prix ne comprennent pas les frais d'achat.

Calculer les hypothèques

Échange de devises

  • Livres sterling: 909.563 GBP
  • Rouble russe: 909.563 RUB
  • Franc suisse: 964.950 CHF
  • Yuan chinois: 8.390.550 CNY
  • Dollar: 1.228.710 USD
  • Couronne suédoise: 11.398.275 SEK
  • La couronne norvégienne: 11.457.915 NOK

Agent

Andreea Dolha
Andreea Dolha

Responsable immobilier neuf

Demander des informations

Contact par Whatsapp

Formulaire de contact

Responsable del tratamiento: Munfort Premium S.L., Finalidad del tratamiento: Gestión y control de los servicios ofrecidos a través de la página Web de Servicios inmobiliarios, Envío de información a traves de newsletter y otros, Legitimación: Por consentimiento, Destinatarios: No se cederan los datos, salvo para elaborar contabilidad, Derechos de las personas interesadas: Acceder, rectificar y suprimir los datos, solicitar la portabilidad de los mismos, oponerse altratamiento y solicitar la limitación de éste, Procedencia de los datos: El Propio interesado, Información Adicional: Puede consultarse la información adicional y detallada sobre protección de datos Aquí.
WhatsApp