Revente » Maisons mitoyennes » Algorfa &raq

Algorfa Maisons mitoyennes · Revente

Vue générale

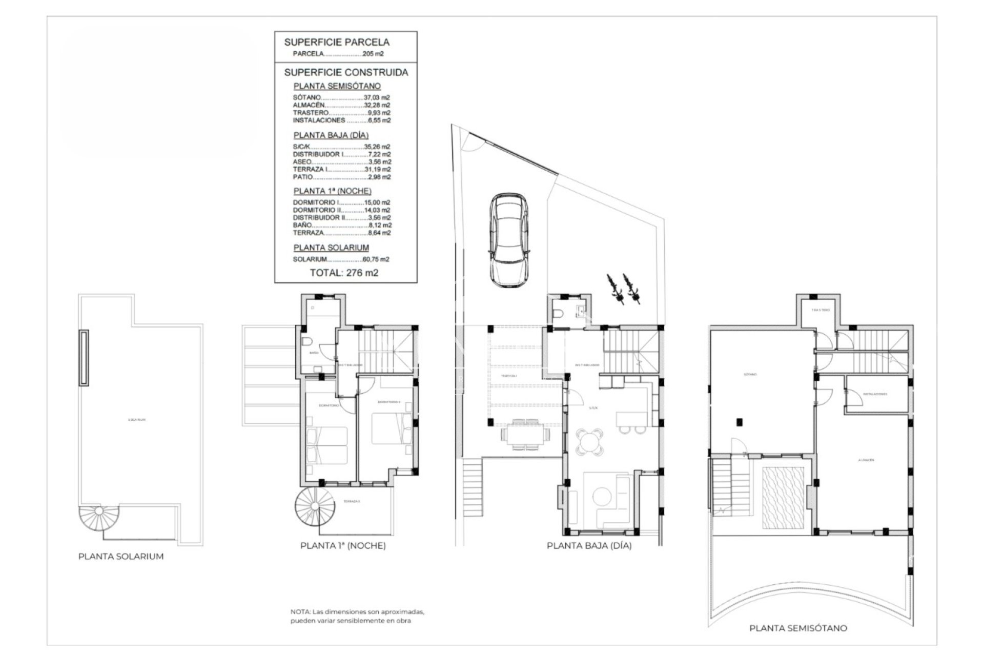
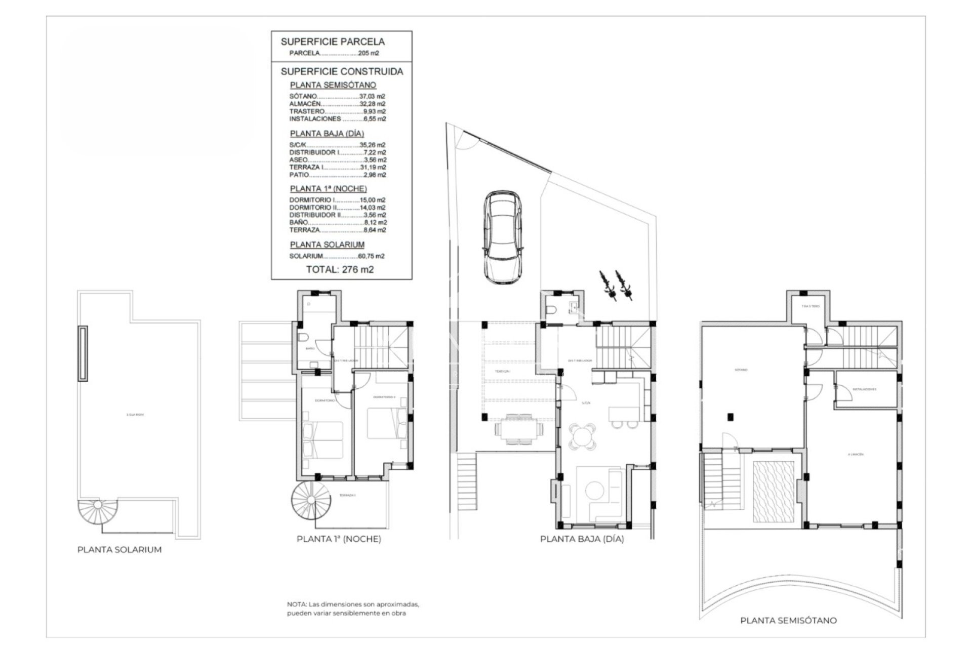
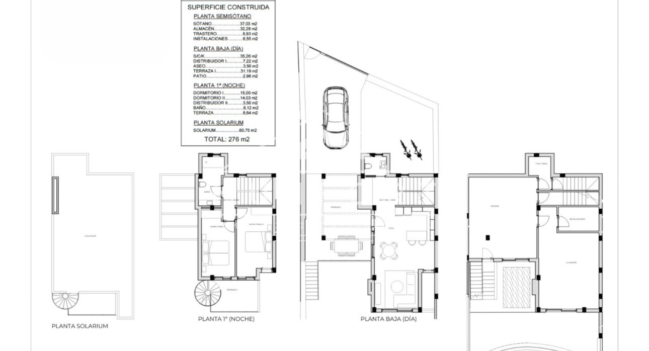
  • 199m2
  • 182m2
  • 3
  • 3
  • Privé
  • Oui
Chambres: 3
Salles de bain: 3
Construit: 199m2
Parcelle: 182m2
Piscine: Privé
Garage: Oui
Condition: New
Distance à la plage: 21 Km.
Énergie: En cours
Climatisation
Ascenseur

La description

MAISON MITOYENNE de trois chambres à LA FINCA GOLF

Agent

Andreea Dolha
Andreea Dolha

Responsable immobilier neuf

Demander des informations

Contact par Whatsapp

Formulaire de contact

Responsable del tratamiento: Munfort Premium S.L., Finalidad del tratamiento: Gestión y control de los servicios ofrecidos a través de la página Web de Servicios inmobiliarios, Envío de información a traves de newsletter y otros, Legitimación: Por consentimiento, Destinatarios: No se cederan los datos, salvo para elaborar contabilidad, Derechos de las personas interesadas: Acceder, rectificar y suprimir los datos, solicitar la portabilidad de los mismos, oponerse altratamiento y solicitar la limitación de éste, Procedencia de los datos: El Propio interesado, Información Adicional: Puede consultarse la información adicional y detallada sobre protección de datos Aquí.

Finance

Les informations fournies ici sont sous réserve d'erreurs et ne font pas partie d'un contrat. L'offre peut être modifiée ou retirée sans préavis. Les prix ne comprennent pas les frais d'achat.

Calculer les hypothèques

Échange de devises

  • Livres sterling: 410.186 GBP
  • Rouble russe: 410.186 RUB
  • Franc suisse: 434.119 CHF
  • Yuan chinois: 3.766.310 CNY
  • Dollar: 544.754 USD
  • Couronne suédoise: 5.145.294 SEK
  • La couronne norvégienne: 5.292.161 NOK
WhatsApp