Revente » Villas de luxe » Benissa »

Benissa Villas de luxe · Revente

Vue générale

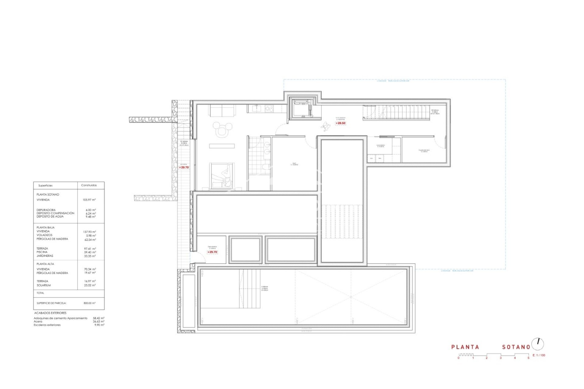
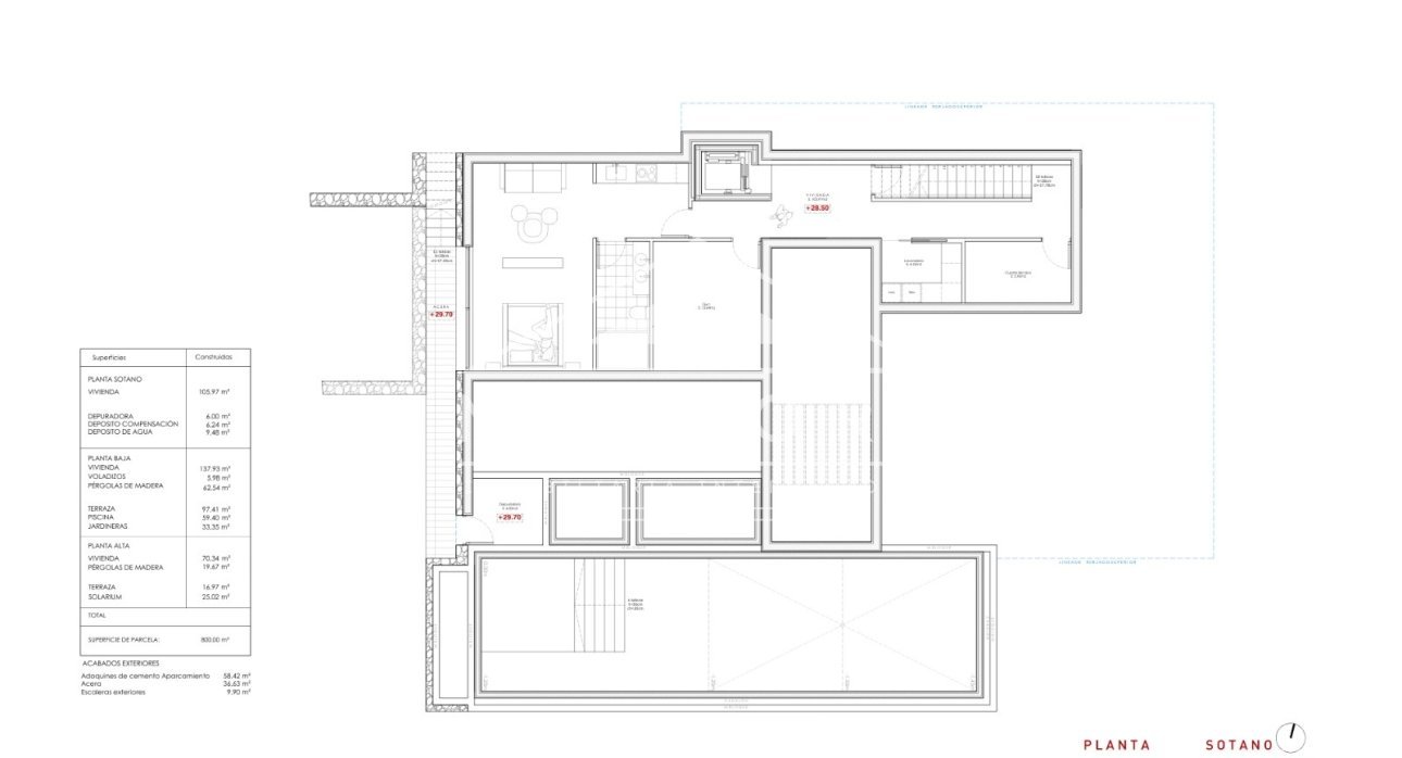
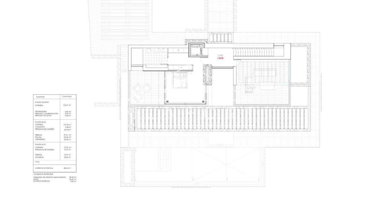
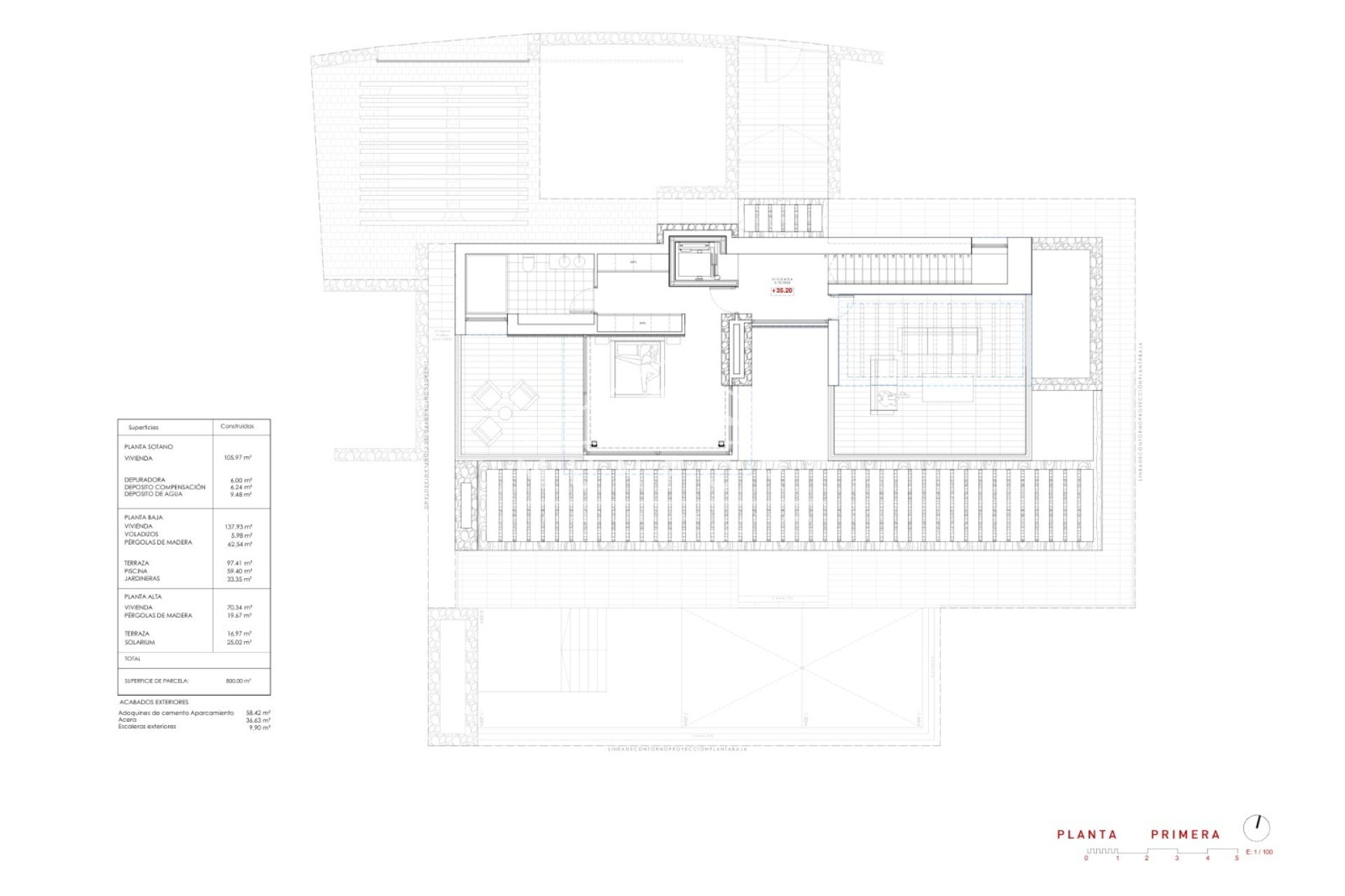
  • 342m2
  • 800m2
  • 4
  • 4
  • Privé
Chambres: 4
Salles de bain: 4
Construit: 342m2
Parcelle: 800m2
Piscine: Privé
Condition: New
Distance à la plage: 200 Mts.
Énergie: En cours
Sous-sol

La description

VILLA DE LUXE de quatre chambres à BENISSA

Agent

Andreea Dolha
Andreea Dolha

Responsable immobilier neuf

Demander des informations

Contact par Whatsapp

Formulaire de contact

Responsable del tratamiento: Munfort Premium S.L., Finalidad del tratamiento: Gestión y control de los servicios ofrecidos a través de la página Web de Servicios inmobiliarios, Envío de información a traves de newsletter y otros, Legitimación: Por consentimiento, Destinatarios: No se cederan los datos, salvo para elaborar contabilidad, Derechos de las personas interesadas: Acceder, rectificar y suprimir los datos, solicitar la portabilidad de los mismos, oponerse altratamiento y solicitar la limitación de éste, Procedencia de los datos: El Propio interesado, Información Adicional: Puede consultarse la información adicional y detallada sobre protección de datos Aquí.

Finance

Les informations fournies ici sont sous réserve d'erreurs et ne font pas partie d'un contrat. L'offre peut être modifiée ou retirée sans préavis. Les prix ne comprennent pas les frais d'achat.

Calculer les hypothèques

Échange de devises

  • Livres sterling: 2.471.520 GBP
  • Rouble russe: 2.471.520 RUB
  • Franc suisse: 2.615.730 CHF
  • Yuan chinois: 22.693.410 CNY
  • Dollar: 3.282.345 USD
  • Couronne suédoise: 31.002.300 SEK
  • La couronne norvégienne: 31.887.225 NOK
WhatsApp