Revente » Villas de luxe » Calpe » Ca

Calpe Villas de luxe · Revente

Vue générale

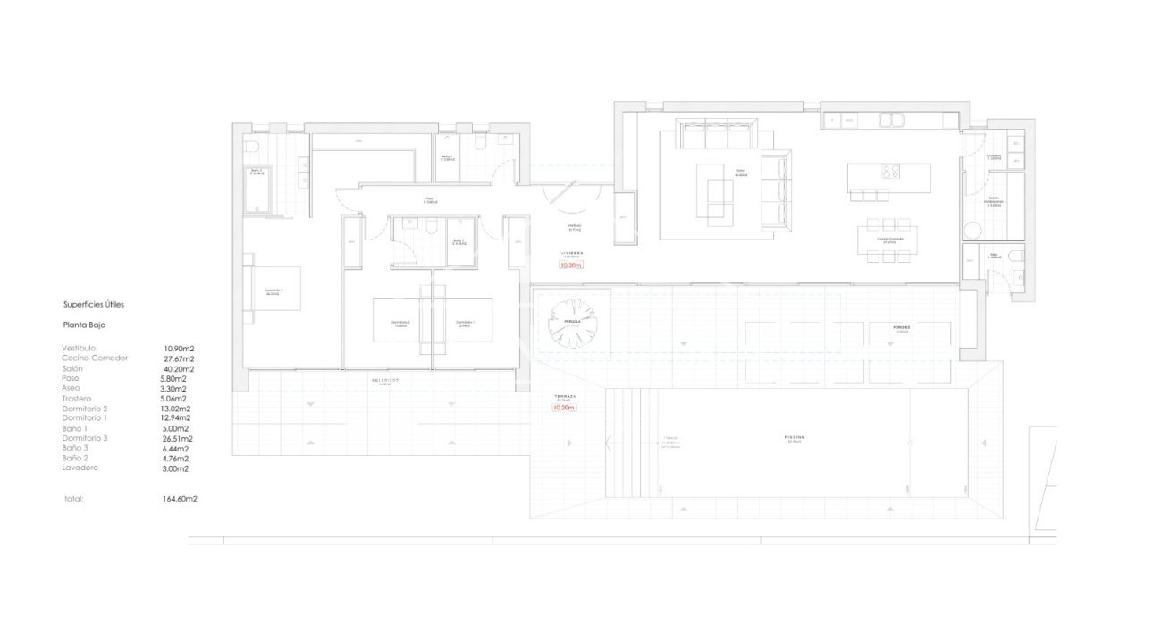
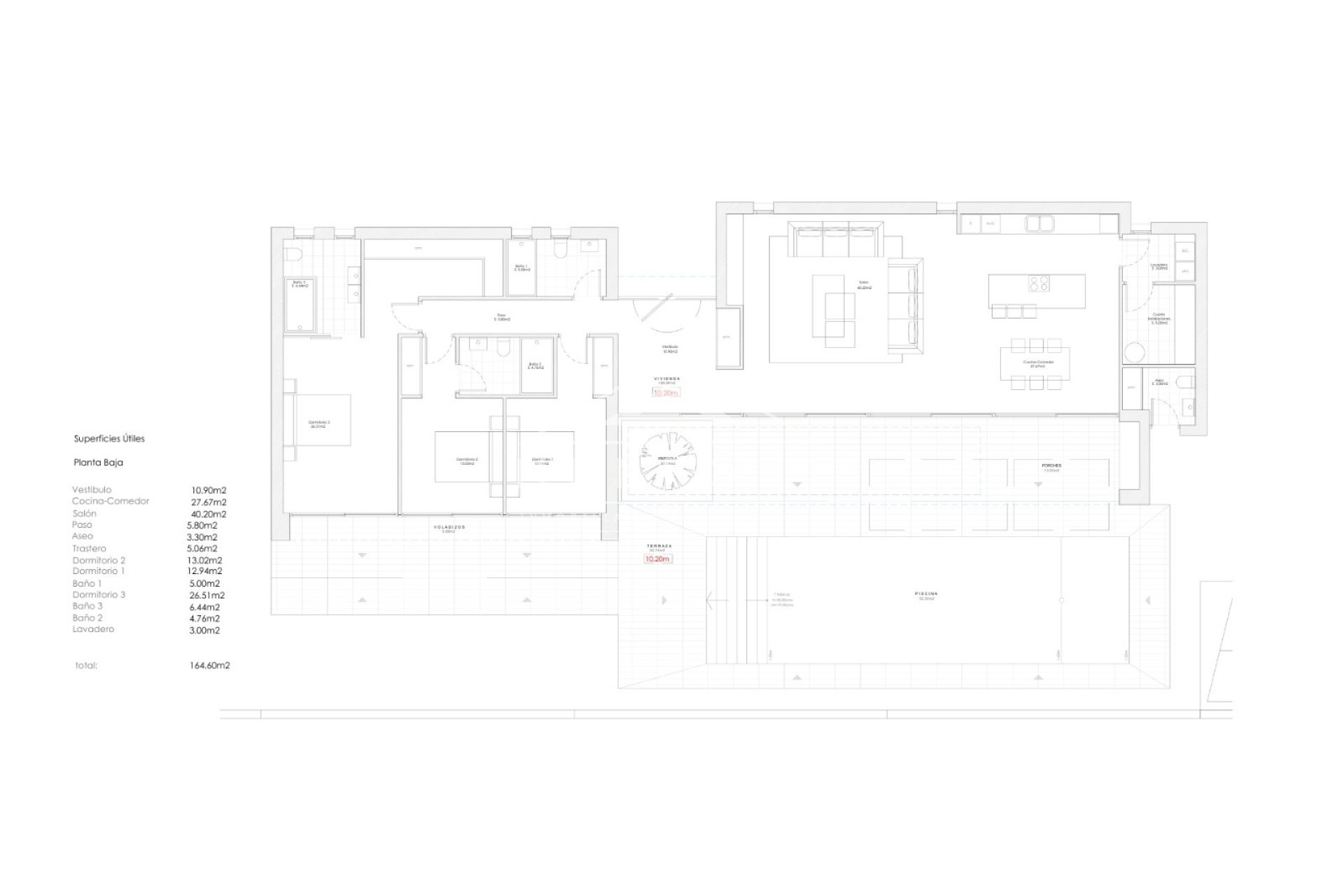
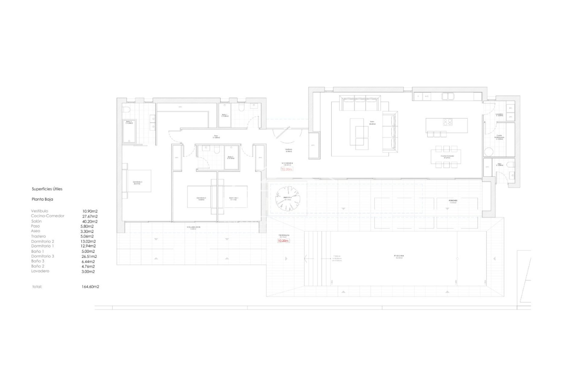
  • 249m2
  • 800m2
  • 3
  • 4
  • Privé
Chambres: 3
Salles de bain: 4
Construit: 249m2
Parcelle: 800m2
Piscine: Privé
Condition: New
Distance à l'aéroport: 79 Km.
Énergie: En cours
Débarras
Type de sol: chauffage au sol

La description

VILLA INDÉPENDANTE de trois chambres à CALPE

Images

Emplacement

Agent

Andreea Dolha
Andreea Dolha

Responsable immobilier neuf

Demander des informations

Contact par Whatsapp

Formulaire de contact

Responsable del tratamiento: Munfort Premium S.L., Finalidad del tratamiento: Gestión y control de los servicios ofrecidos a través de la página Web de Servicios inmobiliarios, Envío de información a traves de newsletter y otros, Legitimación: Por consentimiento, Destinatarios: No se cederan los datos, salvo para elaborar contabilidad, Derechos de las personas interesadas: Acceder, rectificar y suprimir los datos, solicitar la portabilidad de los mismos, oponerse altratamiento y solicitar la limitación de éste, Procedencia de los datos: El Propio interesado, Información Adicional: Puede consultarse la información adicional y detallada sobre protección de datos Aquí.

Finance

Les informations fournies ici sont sous réserve d'erreurs et ne font pas partie d'un contrat. L'offre peut être modifiée ou retirée sans préavis. Les prix ne comprennent pas les frais d'achat.

Calculer les hypothèques

Échange de devises

  • Livres sterling: 1.322.480 GBP
  • Rouble russe: 1.322.480 RUB
  • Franc suisse: 1.399.645 CHF
  • Yuan chinois: 12.142.965 CNY
  • Dollar: 1.756.343 USD
  • Couronne suédoise: 16.588.950 SEK
  • La couronne norvégienne: 17.062.463 NOK
WhatsApp