LEILIGHET i CIUDAD QUESADA

Ciudad Quesada Leiligheter · Videresalg

Oversikt visning

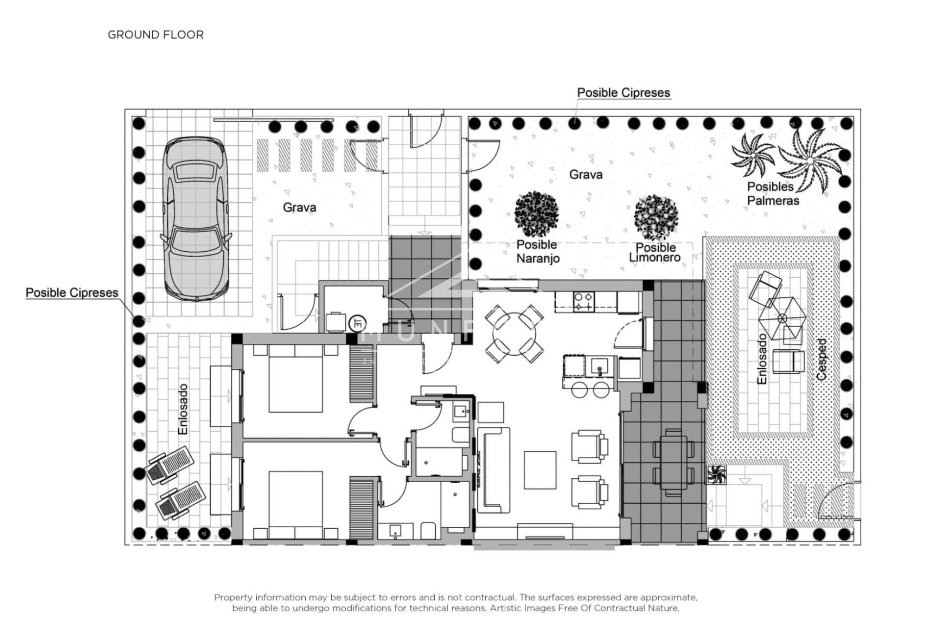
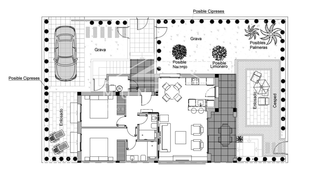
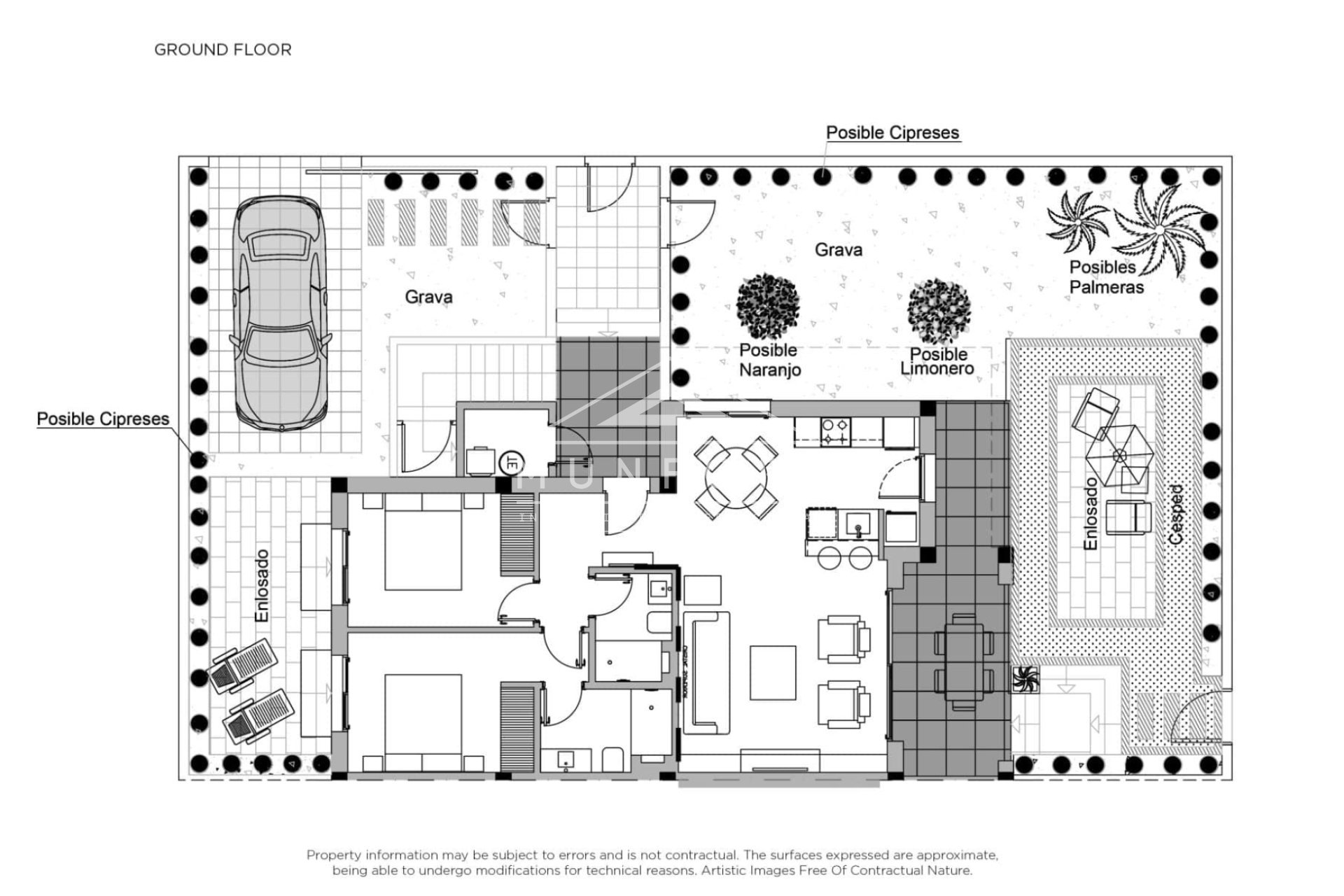
  • 93m2
  • 2
  • 2
  • Samfunnet
  • Privat
Soverom: 2
Baderom: 2
Inne: 93m2
Hage: 115 m2
Basseng: Samfunnet
Garasje: Privat
Lager du mat: amerikansk
Gulv: 0
Energi~~POS=TRUNC: Igang

Beskrivelse

LEILIGHET i CIUDAD QUESADA

Agent

Cynthia Fernández
Cynthia Fernández

Administrasjon

Be om informasjon

Kontakt av Whatsapp

Kontakt skjema

Responsable del tratamiento: Munfort Premium S.L., Finalidad del tratamiento: Gestión y control de los servicios ofrecidos a través de la página Web de Servicios inmobiliarios, Envío de información a traves de newsletter y otros, Legitimación: Por consentimiento, Destinatarios: No se cederan los datos, salvo para elaborar contabilidad, Derechos de las personas interesadas: Acceder, rectificar y suprimir los datos, solicitar la portabilidad de los mismos, oponerse altratamiento y solicitar la limitación de éste, Procedencia de los datos: El Propio interesado, Información Adicional: Puede consultarse la información adicional y detallada sobre protección de datos Aquí.

Finanser

Denne informasjonen gitt her er underlagt feil og inngår ikke i noen kontrakt. Tilbudet kan endres eller trekkes tilbake uten varsel. Prisene inkluderer ikke andre kostnader

Beregn boliglån

Valutaveksling

  • Pounds: 321.662 GBP
  • Russiske rubelen: 321.662 RUB
  • Sveitsiske franc: 340.430 CHF
  • Kinesiske yuan: 2.953.488 CNY
  • Dollar: 427.189 USD
  • Svenske kroner: 4.034.868 SEK
  • Den norske kronen: 4.150.038 NOK
WhatsApp