Återförsäljning » Lyxvillor » Orihuela Cost

Cabo Roig Lyxvillor · Återförsäljning

Översikt vy

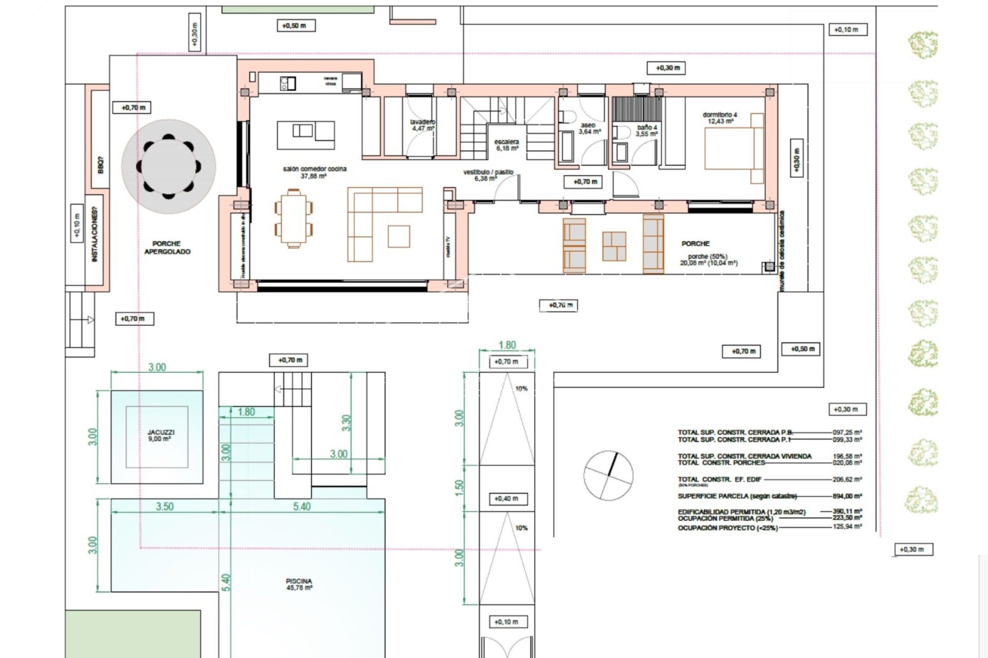
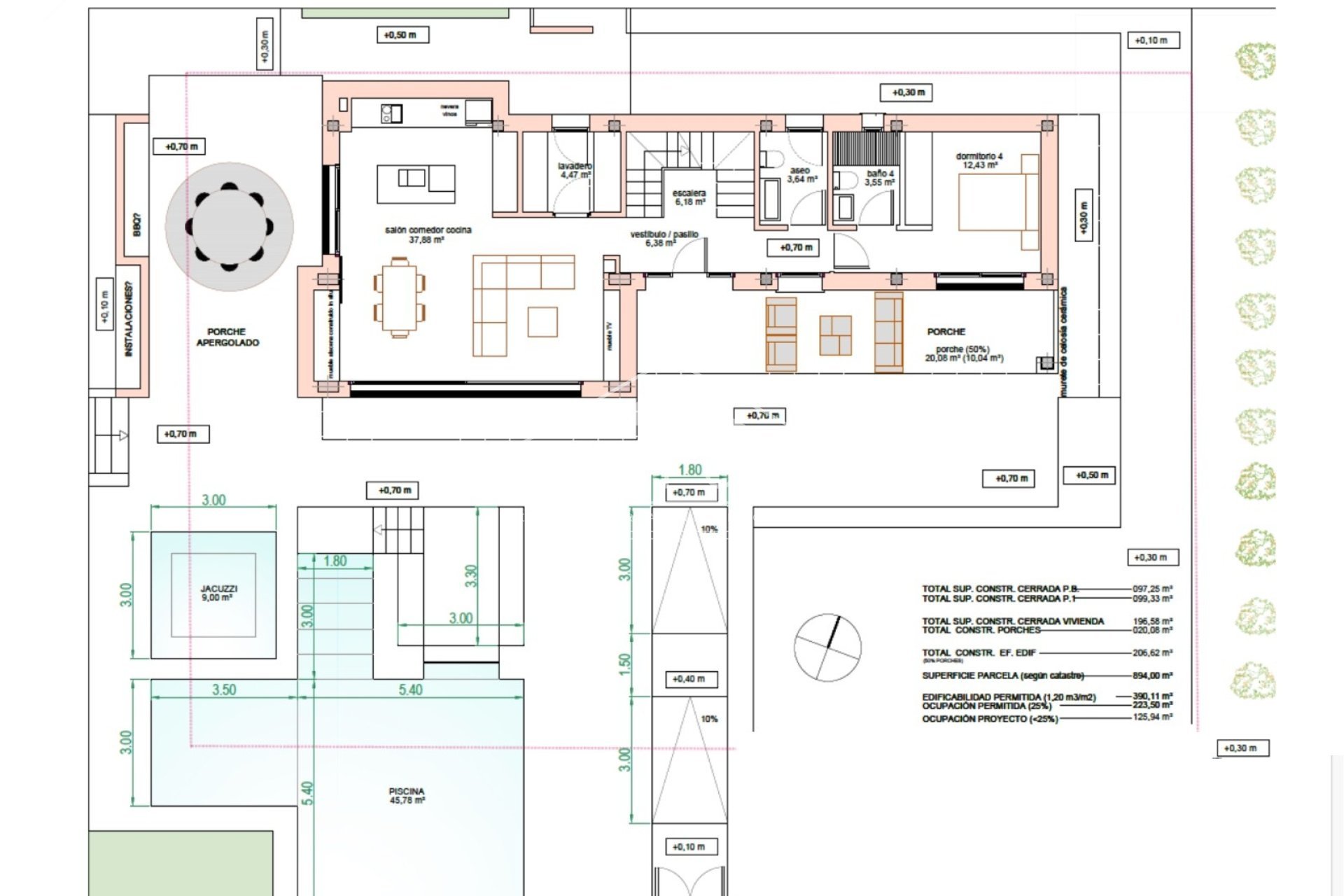
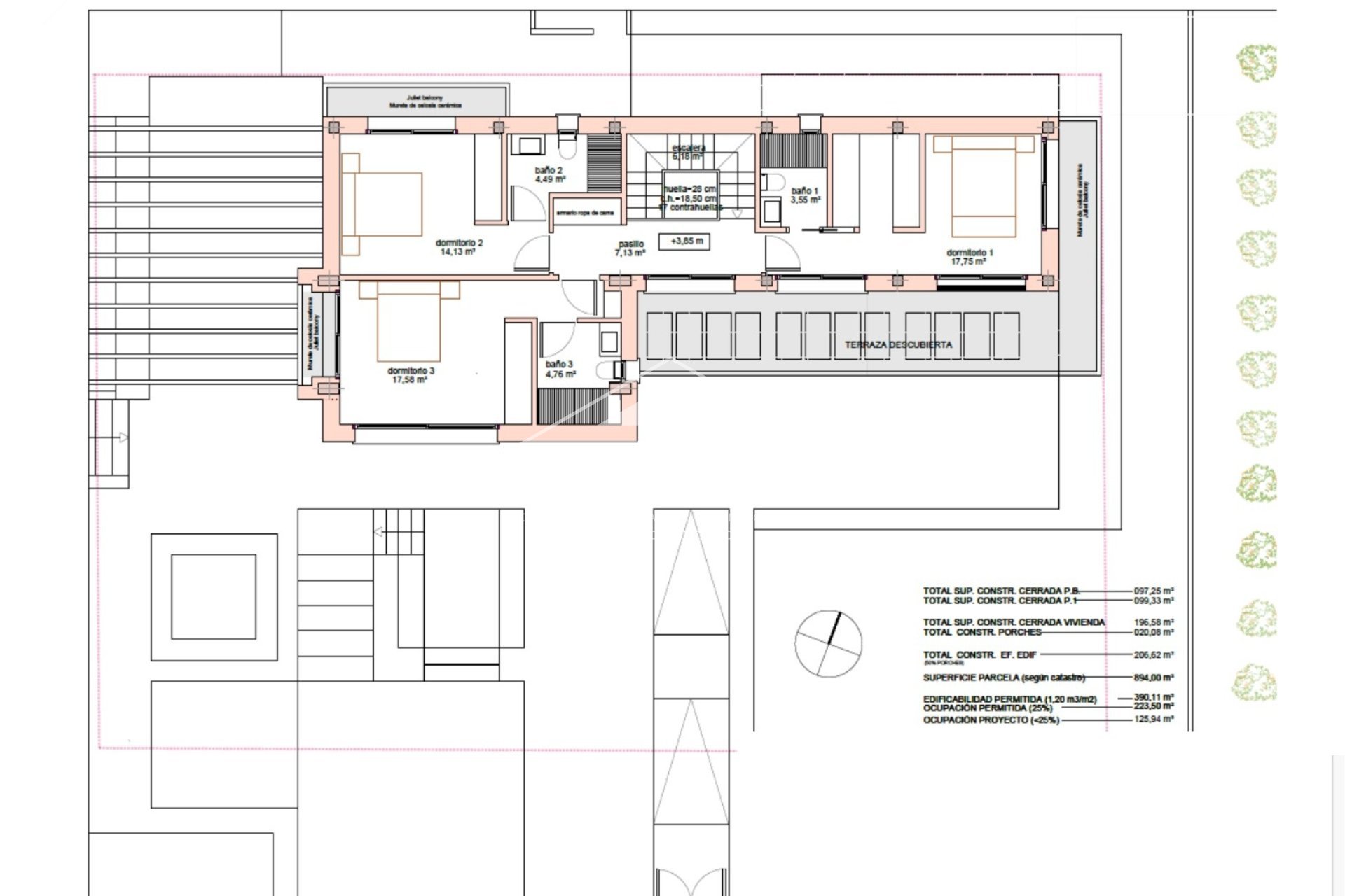
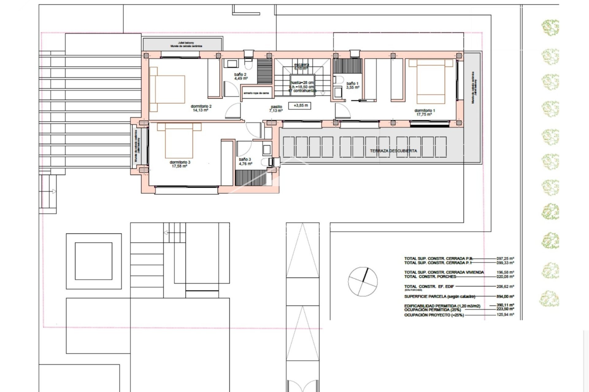
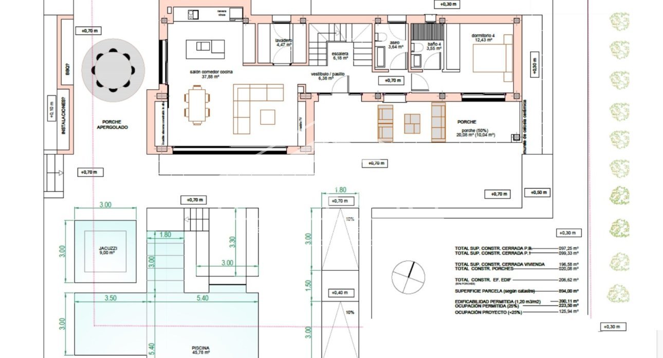
  • 206m2
  • 894m2
  • 4
  • 5
  • Privat
Sovrum: 4
Badrum: 5
Byggd yta: 206m2
Parcela: 894m2
Slå samman: Privat
Orientering: Söder
Avstånd till strand: 600 Mts.
Avstånd till flygplatsen: 52 Km.
Energi~~POS=TRUNC: Pågående

Beskrivning

LYXVILLA med fyra sovrum i CABO ROIG

Agent

Andreea Dolha
Andreea Dolha

Nyproduktionschef

Begära information

Kontakt av Whatsapp

Kontaktformulär

Responsable del tratamiento: Munfort Premium S.L., Finalidad del tratamiento: Gestión y control de los servicios ofrecidos a través de la página Web de Servicios inmobiliarios, Envío de información a traves de newsletter y otros, Legitimación: Por consentimiento, Destinatarios: No se cederan los datos, salvo para elaborar contabilidad, Derechos de las personas interesadas: Acceder, rectificar y suprimir los datos, solicitar la portabilidad de los mismos, oponerse altratamiento y solicitar la limitación de éste, Procedencia de los datos: El Propio interesado, Información Adicional: Puede consultarse la información adicional y detallada sobre protección de datos Aquí.

Finans

Informationen som ges här är föremål för felskrivningar och utgör inte en del av något kontrakt. Erbjudandet kan ändras eller dras tillbaka utan förvarning. Priserna inkluderar inte övriga omkostnader.

Beräkna inteckningar

Valutaväxling

  • Pounds: 1.365.840 GBP
  • Ryska rubeln: 1.365.840 RUB
  • Schweiziska franc: 1.445.535 CHF
  • Kinesiska yuan: 12.541.095 CNY
  • Dollar: 1.813.928 USD
  • Svenska kronor: 17.132.850 SEK
  • Den norska kronan: 17.621.888 NOK
WhatsApp