PENTHOUSE i CIUDAD QUESADA

Ciudad Quesada Takvåningar · Återförsäljning

Översikt vy

  • 115m2
  • 3
  • 2
  • gemenskap
  • Numrerad
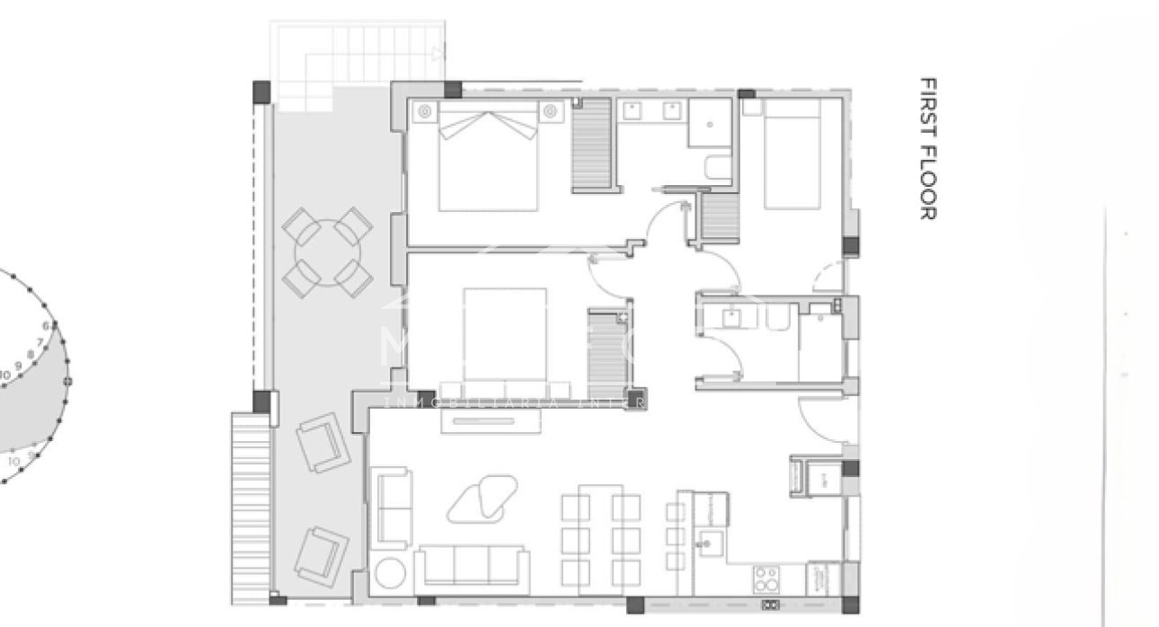
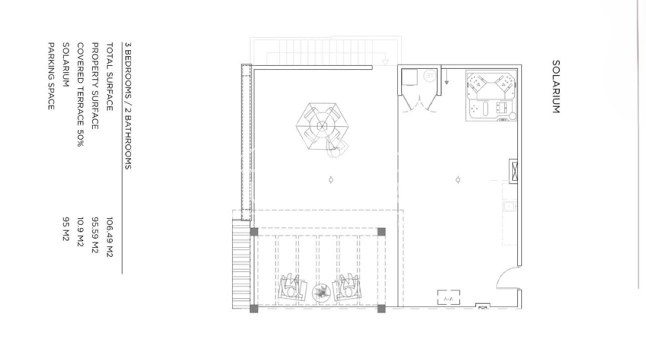
Sovrum: 3
Badrum: 2
Byggd yta: 115m2
Solarium: 100m2
Slå samman: gemenskap
Garage: Numrerad
Skick: New
Energi~~POS=TRUNC: Pågående
Förråd
Hiss

Beskrivning

PENTHOUSE i CIUDAD QUESADA

Agent

Juan Carlos Anguisaca
Juan Carlos Anguisaca

Nybyggnadsmäklare

Begära information

Kontakt av Whatsapp

Kontaktformulär

Responsable del tratamiento: Munfort Premium S.L., Finalidad del tratamiento: Gestión y control de los servicios ofrecidos a través de la página Web de Servicios inmobiliarios, Envío de información a traves de newsletter y otros, Legitimación: Por consentimiento, Destinatarios: No se cederan los datos, salvo para elaborar contabilidad, Derechos de las personas interesadas: Acceder, rectificar y suprimir los datos, solicitar la portabilidad de los mismos, oponerse altratamiento y solicitar la limitación de éste, Procedencia de los datos: El Propio interesado, Información Adicional: Puede consultarse la información adicional y detallada sobre protección de datos Aquí.

Finans

Informationen som ges här är föremål för felskrivningar och utgör inte en del av något kontrakt. Erbjudandet kan ändras eller dras tillbaka utan förvarning. Priserna inkluderar inte övriga omkostnader.

Beräkna inteckningar

Valutaväxling

  • Pounds: 360.615 GBP
  • Ryska rubeln: 360.615 RUB
  • Schweiziska franc: 382.577 CHF
  • Kinesiska yuan: 3.310.634 CNY
  • Dollar: 484.835 USD
  • Svenska kronor: 4.486.104 SEK
  • Den norska kronan: 4.602.231 NOK
WhatsApp