PENTHOUSE in CIUDAD QUESADA
Ref: EM013-N-D
414.000€

Ciudad Quesada Penthouses · Herverkoop

Overzicht weergeven

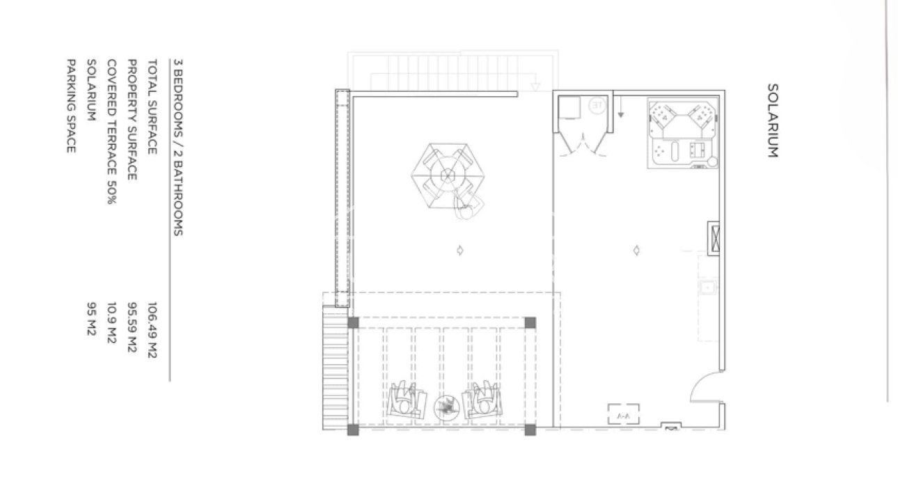
  • 115m2
  • 3
  • 2
  • Gemeenschap
  • Genummerd
Slaapkamers: 3
Badkamers: 2
Gebouwd: 115m2
Solarium: 100m2
Zwembad: Gemeenschap
Garage: Genummerd
Condition: Nieuw
Energy Rating: In proces
Berging
Lift

Beschrijving

PENTHOUSE in CIUDAD QUESADA

Financiën

Deze informatie is hier onderhevig aan fouten en maakt geen deel uit van een contract. De aanbieding kan zonder kennisgeving worden gewijzigd of ingetrokken. Prijzen zijn exclusief aankoopkosten.

Bereken hypotheken

Wisselkantoor

  • Pounds: 358.793 GBP
  • Russische roebel: 358.793 RUB
  • Zwitserse frank: 379.514 CHF
  • Chinese yuan: 3.260.747 CNY
  • Dollar: 480.944 USD
  • Zweedse kroon: 4.480.101 SEK
  • De Noorse kroon: 4.468.716 NOK

Agent

Juan Carlos Anguisaca
Juan Carlos Anguisaca

Nieuwbouwmakelaar

Informatie aanvragen

Contact door Whatsapp

Contactformulier

Responsable del tratamiento: Munfort Premium S.L., Finalidad del tratamiento: Gestión y control de los servicios ofrecidos a través de la página Web de Servicios inmobiliarios, Envío de información a traves de newsletter y otros, Legitimación: Por consentimiento, Destinatarios: No se cederan los datos, salvo para elaborar contabilidad, Derechos de las personas interesadas: Acceder, rectificar y suprimir los datos, solicitar la portabilidad de los mismos, oponerse altratamiento y solicitar la limitación de éste, Procedencia de los datos: El Propio interesado, Información Adicional: Puede consultarse la información adicional y detallada sobre protección de datos Aquí.
WhatsApp